Ir directamente a la información del producto
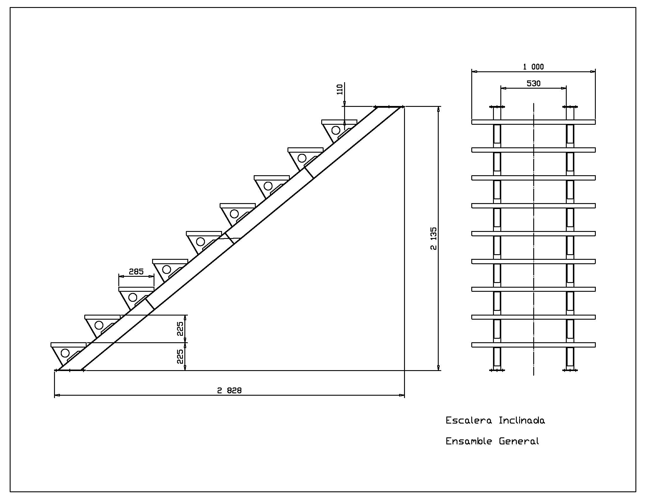
Escalera Inclinada

Escalera Inclinada

$399.00

Estos planos mecánicos muestran el diseño de ingeniería de una escalera inclinada a 39°, especialmente concebida para el acceso entre cubiertas en embarcaciones y estructuras marinas. Su configuración ofrece un tránsito seguro y ergonómico, adaptándose a las condiciones de espacio y resistencia propias de la construcción naval. El diseño emplea placas de aluminio estructural que garantizan durabilidad frente a la corrosión, combinadas con escalones de madera maciza de 1 1/2" de espesor para una superficie estable y estética.

El conjunto de planos técnicos profesionales en español detalla con precisión cada componente, unión y punto de fijación, facilitando el proceso de fabricación y montaje. Incluye especificaciones dimensionales completas, materiales recomendados y secuencias de armado basadas en proyectos reales de ingeniería marina. Es un material de referencia ideal para astilleros, diseñadores navales y técnicos especializados que busquen reproducir o adaptar estructuras de acceso marino de alta calidad.

Características principales

  • Inclinación precisa de 39° optimizada para tránsito seguro entre cubiertas.
  • Estructura de aluminio con alta resistencia a la corrosión marina.
  • Escalones en madera de 1 1/2" que aportan estabilidad y acabado náutico.
  • Planos mecánicos detallados con cotas en milímetros y vistas de ensamblaje.

Contenido del archivo

  • 8 planos en formato PDF con diseño completo y especificaciones técnicas. Dimensiones en milímetros salvo indicación distinta.
  • Vistas detalladas de cada componente, ensamblaje y cortes transversales necesarios.
  • Documentación técnica lista para impresión en tamaño carta.

Usos recomendados

  • Talleres de fabricación de componentes navales y marinos.
  • Astilleros y constructores de embarcaciones de recreo o trabajo.
  • Ingenieros mecánicos especializados en diseño naval y estructuras a bordo.
  • Empresas de mantenimiento de barcos y yates.
  • Estudiantes y docentes de ingeniería naval como material de referencia técnica.

Estos planos técnicos profesionales están basados en proyectos reales. Son materiales de referencia que deben ser revisados por un ingeniero licenciado según los requisitos específicos de tu proyecto y jurisdicción local.

Descarga inmediata: Compra ahora y recibe los archivos PDF en tu correo en menos de 5 minutos. Listos para imprimir y usar como referencia técnica profesional.

You may also like