
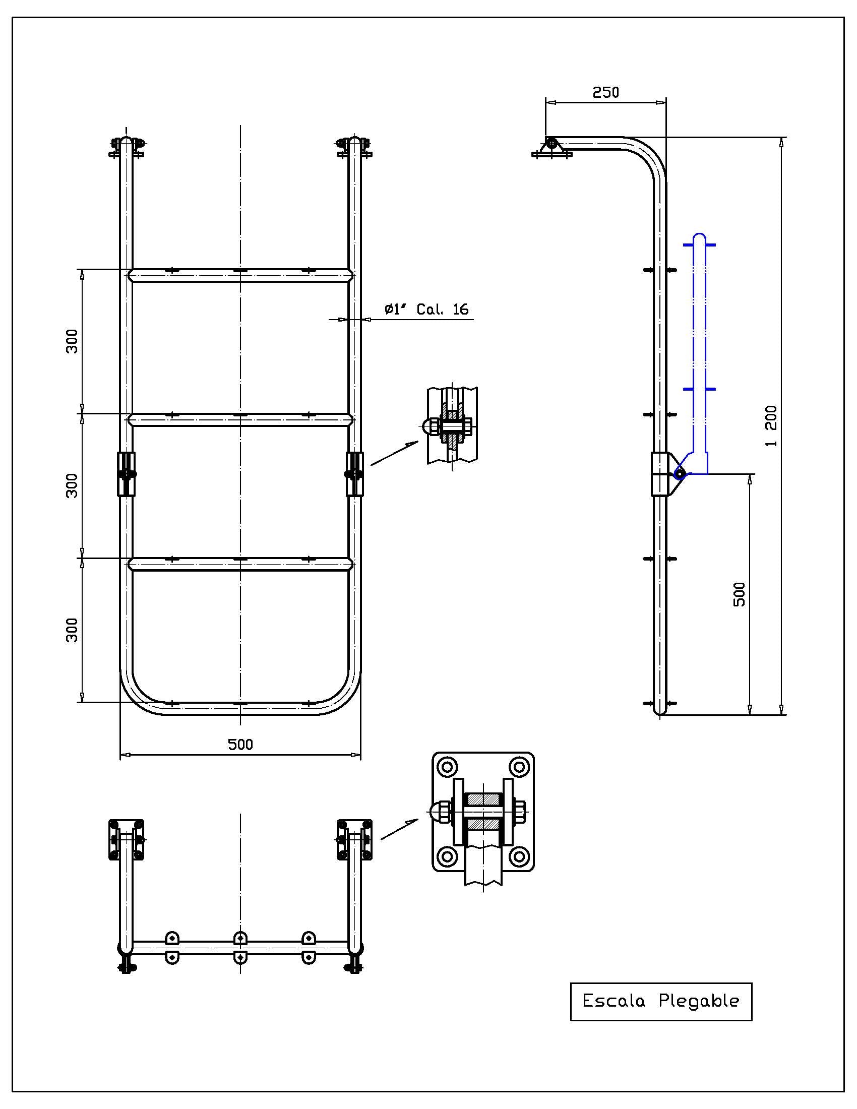
Escala Plegable
Estos planos mecánicos muestran el diseño de ingeniería completo de una escala plegable y abatible, creada para facilitar el acceso desde el agua hacia la cubierta con total comodidad y seguridad. Este diseño naval combina practicidad, resistencia y materiales de alta calidad, optimizados para entornos marinos exigentes. Su estructura en tubo y placas de acero inoxidable garantiza durabilidad frente a la corrosión y un excelente desempeño en condiciones salinas, ideal para proyectos de equipamiento náutico y construcción naval.
El conjunto fue desarrollado con criterios profesionales de ingeniería naval, incorporando documentación detallada y aplicabilidad comprobada en embarcaciones reales. Las medidas se expresan en milímetros, asegurando precisión en corte y ensamblaje. Estos planos técnicos profesionales en español constituyen una referencia confiable para astilleros, talleres y diseñadores que requieran fabricar o adaptar sistemas de acceso marino.
Características principales
- Escalones en tubo de 1” con orejas soldadas para la fijación de madera, recomendada Teca.
- Estructura fabricada completamente en acero inoxidable de grado marino.
- Medidas expresadas en milímetros salvo que se indique otra unidad.
- Planos listos para impresión en tamaño carta, con especificaciones verificadas de ingeniería.
Contenido del archivo
- 17 planos en formato PDF con diseño completo y especificaciones técnicas. Dimensiones en milímetros salvo indicación distinta.
- Vistas detalladas de cada parte, cortes y ensamblajes del sistema plegable.
- Documentación técnica lista para impresión y uso profesional en talleres navales.
Usos recomendados
- Astilleros y talleres navales que requieran planos de escaleras o estructuras de acceso marino.
- Profesionales de la construcción naval y diseño mecánico.
- Ingenieros mecánicos especializados en equipamiento náutico y embarcaciones recreativas.
- Estudiantes y técnicos que deseen comprender la fabricación de estructuras en acero y madera para uso marino.
- Constructores independientes que busquen un recurso de referencia confiable para proyectos náuticos.
Estos planos técnicos profesionales están basados en proyectos reales. Son materiales de referencia que deben ser revisados por un ingeniero licenciado según los requisitos específicos de tu proyecto y jurisdicción local.
Descarga inmediata: Compra ahora y recibe los archivos PDF en tu correo en menos de 5 minutos. Listos para imprimir y usar como referencia técnica profesional.